Ir al contenido
Volver
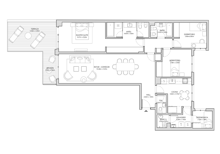
tipologías
3 dormitorios, balcón, terraza y dependencia de servicio
Más información